截止2020年,融信集团已相继在连云港地区拿下大量开发土地,项目体量大,开发节奏快。为保证产品品质,同时达到降本的目的,我们结合集团结构设计标准化文件,立足大盘开发的新形势,全过程提供了融信连云港学院府项目设计阶段的咨询服务,本案具体探索地库顶板的合理化计算,地库底板厚度在抗浮新标执行后的合理化选取,抗拔桩的布置咨询,环境类别及腐蚀性对混凝土强度等级的影响,边缘构件经济性画法等五个方面问题,挖掘结构过程咨询对结构设计隐藏的产品力及价值。
连云港学院府项目 · 简介
融信·华阳学院府坐落于连云港,这片文化之地素有东海第一胜境之称,与山、海、港、城相依相拥。自明代以来,连云港历代均建有书院。2006年,市委市政府启动科教创业园区建设,连云港大学城、学院路、多家名校邸定于此,拥有浓郁的人文学术氛围。“一条学院路,一座学院府”便是连云港教育气息最浓厚的所在,也是城市居住理念更新的目的地,项目便选址于此。
示意图 · 区位图

示意图 · 总平面图


示意图 · 室外实景


示意图 · 景观空间
左右滑动查看更多





示意图 · 立面设计
左右滑动查看更多





示意图 · 室内实景
左右滑动查看更多






连云港学院府项目 · 方案/测算
对比常规 分析前置

一、车库顶板采用梁板式结构时顶板算法

①常规算法为为手册算法,推荐采用有限元算法


△ 手册算法选择菜单及板配筋计算结果


△ 有限元算法选择菜单及板配筋计算结果
②常规算法计算结果及有限元结果特征:常规手册算法所得结果四边均为均匀布筋,单边板配筋较大,支座附加筋较多;有限元算法考虑了竖向刚度集中在柱顶附近的客观事实,计算结果主要钢筋附加区域位于柱顶附近,跨中附加筋相较于手册算法的结果已大幅降低。
③采用有限元算法的成果:节省车库顶板5kg/㎡左右。本项目采用了有限元算法,经济性效果明显。
二、抗浮新标准执行后底板厚度的合理选取

①在抗浮新标准出具之前,设计中常规采用的做法:以大小柱网单层车库为例,底板厚度取值一般为250~350mm之间。
②抗浮新标准对板厚规定的变化

③抗浮新标准执行后,设计中常规采用的做法已从350mm厚开始起步,且普遍存在小柱网采用350mm厚,中柱网顺延为400mm厚的做法。
④350mm厚与400厚成本对比:350mm厚时,混凝土约节省0.04m³/㎡,钢筋约节省3.2kg/㎡。且同样满足《建筑工程抗浮技术标准》的要求。因此,大小柱网的单层车库是建议继续采用350mm厚的。本项目大小柱网单层车库采用了350厚底板,经济性效果明显。
三、抗拔桩的布置

①大小柱网车库,车道跨跨度大,浮力荷载从属面积大,柱下集中布桩常出现单桩抗拔难以满足要求,两桩抗拔存在承载力利用不充分的情况,如下图所示。

②对于上述情况,推荐采用两柱合用一桩,在跨中适当补桩的形式,如下图所示。

③在跨中布桩需注意的问题:本车库桩基兼抗压,且柱下单桩即可满足抗压要求。从传力路线来看,柱下轴力仍是由柱下的单桩承担。因此,在模型计算时,需注意调节跨中桩基的桩土刚度系数,使柱下桩承受主要的轴力以使计算结果符合事实。同时相邻柱基沉降满足地规相关要求。
④对桩基数量的影响:采用两柱合用一桩的方法,每两柱可节省一桩。车库柱数量往往较多,两柱下可节省一根抗拔桩,有较大经济性价值。本项目采用了上述做法,效果明显。
提前介入 综合咨询

具体咨询措施例一:
混凝土强度等级:对地勘所提出的腐蚀性等级,积极沟通复核;根据水位条件,车库顶板和底板细分为干湿交替和长期浸润两种环境;区分地下水对混凝土的腐蚀性及对钢筋的腐蚀性,根据实际情况降低车库混凝土强度等级。本项目采用了上述做法,混凝土从c40降低为c35,约可节省18元/㎡,该价格合钢筋3.3kg/㎡,效果明显。


△ 地勘资料

△ 规范要求
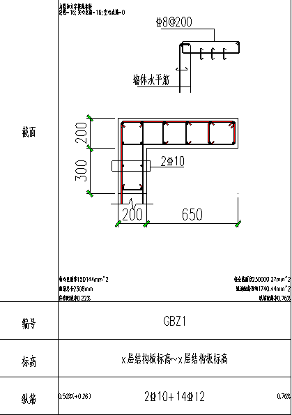
具体咨询措施例二:
边缘构件画法:gbz中在满足规范构造的前提下,因间距原因而增设的分布钢筋可以采用d8直径,且纵筋和拉筋间距可按300mm控制。从而在满足规范,且保证提供足够承载力的前提下,降低不必要的成本。本项目采用了上述做法,钢筋约可减少1.5kg/㎡,效果明显。



连云港学院府项目 · 经济性成果
结构过程咨询是一项系统内容,涉及前期结构方案的确定、中期结构各方面的计算以及后期施工图绘制等各方面,上文挑选了五条比较典型的成果进行了阐述,以下仅就结构过程咨询相关的成本节省粗略估算如下:
通过上述(但不限于上述)咨询,考虑到本项目体量(约23.4万㎡),结构过程咨询服务不计间接节省成本,直接节省成本1500万左右,并且呈现效果良好,最终实现了合理降本增效的目标。
鸣谢
项目实现较为理想的降本增效的目标,离不开项目参与各方共同的努力。在此真诚感谢以融信甲方王工为代表的甲方管理团队对本项目咨询工作参与各方的大力监督与推进,工作过程中甲方以每周2~3次的频率密切关注项目进展,并召开多次项目讨论会,为项目顺利实现降本增效发挥作用匪浅。
欢迎拨打一对一免费咨询电话:
13816360548
您也可以咨询我们的在线客服